


111,11 ₸
Көтерме бағаны көрсетуСайттағы минималды тапсырыс сомасы — 100 000 ₸
Компания ХХІ КВАНТ ұсынады ТМ-64 траверсасын сатып алу қоймада немесе тапсырыс бойынша бізде тиімді бағамен. Бізде сіз сапалы өнімді көтерме бағамен тікелей делдалсыз аласыз. Барлық позицияларда Сертификаттар мен сапа төлқұжаттары бар.
Сіз аласыз ТМ-64 траверсіне жеткізіліммен тапсырыс беру Қазақстанның кез келген өңіріне: Қарағанды, Алматы, Астана, Шымкент, Орал, Қостанай, Павлодар, Ақтау, Өскемен және т.б. Біз сенімді логистиканы және жылдам жеткізуді қамтамасыз етеміз. Тапсырысты сайт арқылы рәсімдеңіз kzcable.kz немесе нөмір бойынша кеңес алу үшін менеджерге хабарласыңыз +7 (747) 191-70-02
ТМ-64 траверсі 27.0002 (27.0002-29) үлгілік жобаға сәйкес шығарылады.
ТМ-64 траверстері олар жоғары сапалы көміртекті болаттан жасалған және өнімді коррозиядан қорғауды қамтамасыз ететін төзімді лакпен қапталған (БТ-577 лак). Қолданылады ТМ-64 траверстері сымдарды жүргізу және 10 кВ жоғары вольтты анкерлік тіректерді орнату кезеңінде.
Бекіту ТМ-64 траверстері ол арнайы бекіткіш қысқыштардың көмегімен орындалады. Тіректің әрбір түрі үшін қысқыштың белгілі бір түрі қолданылады. СВ105 типті тіректерге бекіту Х-1 маркалы қысқышпен, ал СВ110 типті тіректерге - Х-42 маркалы қысқышпен жүзеге асырылады. Қысқыштарға тапсырыс беру және жеткізу жеке тәртіпте жүзеге асырылады.
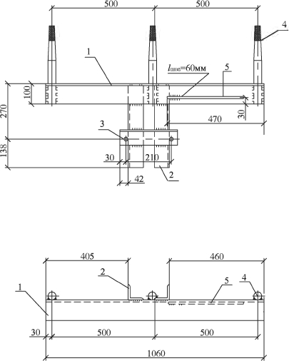
ТМ-64 траверстерінің сипаттамасы
| Лауазымы | Бөлшектің атауы | Саны | Салмағы, кг |
|---|---|---|---|
| 1 | Бұрыш 100х100х8 МЕМСТ 8509-93 L=1060 | 1 | 30.00 |
| 2 | Бұрыш 75х75х8 МЕМСТ 8509-93 L=400 | 2 | |
| 3 | Бұрыш 75х75х8 МЕМСТ 8509-93 L=270 | 1 | |
| 4 | Шеңбер 38 МЕМСТ 2590-88 L=380 | 3 | |
| 5 | Жерге тұйықтау өткізгіші, 10 айналым МЕМСТ 2590-88 L=360 | 1 |

Белгілеу нұсқалары: траверс ТМ-64, ТМ64, ТМ-64
****ТМ-64 Траверс тауарының бағасы сатып алу көлеміне, төлем шарттарына, жеткізу шарттарына байланысты. Компания ХХІ КВАНТ ынтымақтастықтың тиімді шарттарын, жеңілдіктердің икемді жүйесін, төлемді 60 күнге дейін кейінге қалдыруды және мекемеге жылдам жеткізуді ұсынады.
Құнын есептеу үшін - бізге өтінім жіберіңіз WhatsApp немесе менеджерлерімізге нөмір бойынша хабарласыңыз +7 (747) 191-70-02
Қазақстан бойынша сенімді жеткізушіден 30%-ға дейінгі жеңілдікпен жоғары сапалы Траверса ТМ-64 сатып алу мүмкіндігін жіберіп алмаңыз - тапсырысты біздің сайтта рәсімдеңіз kzcable.kz дәл қазір.
| Пайдаланушы сипаттамалары | |
|---|---|
| Салмақ | 30,0 кг |